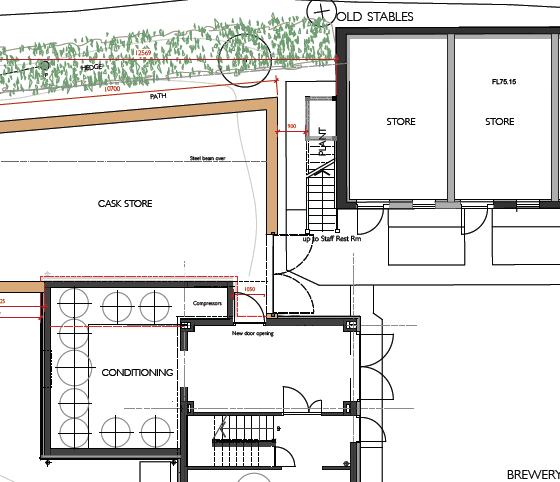
Brewery Cold Room
You probably already knew that cask ale is ideally stored at about 11 degrees. Trouble is, you need the space to store it. For sometime now, we have been making do by using our old converted stable block. But shortly for no longer!
We have been busy constructing our new Cold Room which is linked to our Conditioning Room and it will be fully operational in January. We cannot wait as it will mean we can look after the beer even better!
Plus we are installing a "Sedum" roof. With a roof full of low lying flowers, providing excellent ground cover, the Bees will go mad for it (but not for the Mead!). The roof changes colour with every season and importantly will add excellent winter coverage.
By providing better storage space, we can now get on and brew more beer!
Your Flower Pot Brewers
If you like what you see just click Buy Beer
New Arrivals
Let's see some of our new products






